Visualisierung der selben Terrasse am Abend mit Besuch von zwei Freund*innen im Neubauprojekt Waterkant Geesthacht. Visualisierung eines Paares mit Hund auf der Terrasse im Erdgeschoss im Neubauprojekt Waterkant Geesthacht.

Wasserblick aus allen Wohnungen

Keller- und Fahrradräume

Voraussichtliche Fertigstellung 2. Quartal 2025

Grundrisse an der Waterkant

Filtern

Zimmer Etage

Haus A

Ansicht Wohnung A.1.00.1
Grundriss Wohnung A.1.00.1
Blick auf die Elbe aus der Wohnung 1 im Haus A

Wohnung 1 EG, Süd-West
3 Zimmer, ca. 93,39 m² Wohnfläche
Kaufpreis 549.000 €

Ansicht Wohnung A.1.00.2
Grundriss Wohnung A.1.00.2
Blick auf die Elbe aus der Wohnung 2 im Haus A

Wohnung 2 EG, Süd-Ost
3 Zimmer, ca. 94,83 m² Wohnfläche
Kaufpreis 553.000 €

Ansicht Wohnung A.1.00.3
Grundriss Wohnung A.1.00.3
Blick auf die Elbe aus der Wohnung 3 im Haus A

Wohnung 3 EG, Nord-Ost
3 Zimmer, ca. 81,91 m² Wohnfläche
verkauft

Ansicht Wohnung A.1.00.4
Grundriss Wohnung A.1.00.4
Blick auf die Elbe aus der Wohnung 4* im Haus A

Wohnung 4 EG, Nord-West
3 Zimmer, ca. 94,80 m² Wohnfläche
barrierearm*
verkauft

Ansicht Wohnung A.1.01.1
Grundriss Wohnung A.1.01.1
Blick auf die Elbe aus der Wohnung 5 im Haus A

Wohnung 5 1. OG, Süd-West
3 Zimmer, ca. 87,28 m² Wohnfläche
reserviert

Ansicht Wohnung A.1.01.2
Grundriss Wohnung A.1.01.2

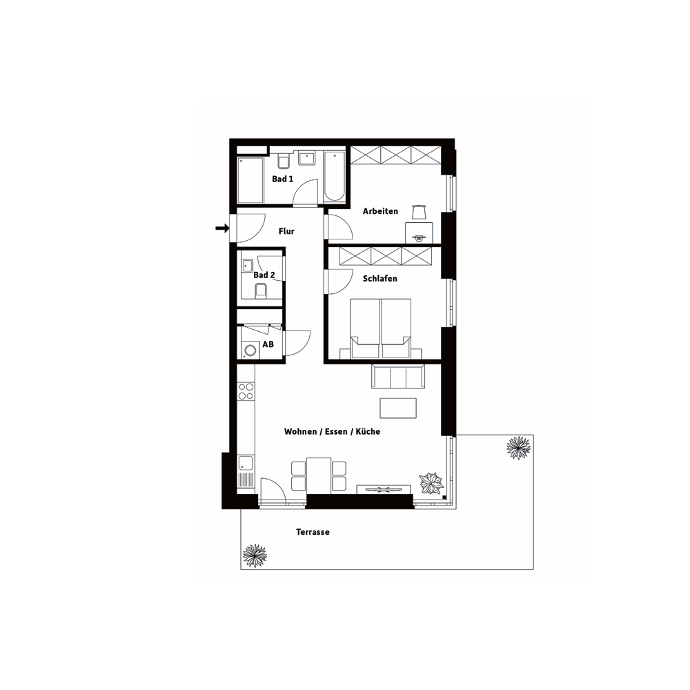
Wohnung 6 1. OG, Süd-Ost
3 Zimmer, ca. 86,68 m² Wohnfläche
verkauft

Ansicht Wohnung A.1.01.3
Grundriss Wohnung A.1.01.3
Blick auf die Elbe aus der Wohnung 7 im Haus A

Wohnung 7 1. OG, Nord-Ost
3 Zimmer, ca. 79,21 m² Wohnfläche
verkauft

Ansicht Wohnung A.1.01.4
Grundriss Wohnung A.1.01.4
Blick auf die Elbe aus der Wohnung 8* im Haus A

Wohnung 8 1. OG, Nord-West
4 Zimmer, ca. 99,78 m² Wohnfläche
barrierearm*
Kaufpreis 531.000 €

Ansicht Wohnung A.1.02.1
Grundriss Wohnung A.1.02.1
Blick auf die Elbe aus der Wohnung 9 im Haus A

Wohnung 9 2. OG, Süd-West
3 Zimmer, ca. 87,28 m² Wohnfläche
verkauft

Ansicht Wohnung A.1.02.2
Grundriss Wohnung A.1.02.2
Blick auf die Elbe aus der Wohnung 10 im Haus A

Wohnung 10 2. OG, Süd-Ost
3 Zimmer, ca. 87,45 m² Wohnfläche
verkauft

Ansicht Wohnung A.1.02.3
Grundriss Wohnung A.1.02.3
Blick auf die Elbe aus der Wohnung 11 im Haus A

Wohnung 11 2. OG, Nord-Ost
3 Zimmer, ca. 79,21 m² Wohnfläche
verkauft

Ansicht Wohnung A.1.02.4
Grundriss Wohnung A.1.02.4
Blick auf die Elbe aus der Wohnung 12* im Haus A

Wohnung 12 2. OG, Nord-West
4 Zimmer, ca. 99,66 m² Wohnfläche
barrierearm*
Kaufpreis 540.000 €

Ansicht Wohnung A.1.03.1
Grundriss Wohnung A.1.03.1
Blick auf die Elbe aus der Wohnung 13 im Haus A

Wohnung 13 3. OG, Süd-West
3 Zimmer, ca. 87,25 m² Wohnfläche
Kaufpreis 550.000 €

Ansicht Wohnung A.1.03.2
Grundriss Wohnung A.1.03.2

Wohnung 14 3. OG, Süd-Ost
3 Zimmer, ca. 87,38 m² Wohnfläche
verkauft

Ansicht Wohnung A.1.03.3
Grundriss Wohnung A.1.03.3
Blick auf die Elbe aus der Wohnung 15 im Haus A

Wohnung 15 3. OG, Nord-Ost
3 Zimmer, ca. 79,20 m² Wohnfläche
verkauft

Ansicht Wohnung A.1.03.4
Grundriss Wohnung A.1.03.4
Blick auf die Elbe aus der Wohnung 16* im Haus A

Wohnung 16 3. OG, Nord-West
4 Zimmer, ca. 99,79 m² Wohnfläche
barrierearm*
Kaufpreis 551.000 €

Ansicht Wohnung A.1.04.1
Grundriss Wohnung A.1.04.1
Blick auf die Elbe aus der Wohnung 17 im Haus A

Wohnung 17 4. OG, Süd-West
2 Zimmer, ca. 71,93 m² Wohnfläche
verkauft

Ansicht Wohnung A.1.04.2
Grundriss Wohnung A.1.04.2

Wohnung 18 4. OG, Süd-Ost
2 Zimmer, ca. 72,29 m² Wohnfläche
verkauft

Ansicht Wohnung A.1.04.3
Grundriss Wohnung A.1.04.3

Wohnung 19 4. OG, Nord-Ost
3 Zimmer, ca. 77,69 m² Wohnfläche
verkauft

Ansicht Wohnung A.1.04.4
Grundriss Wohnung A.1.04.4
Blick auf die Elbe aus der Wohnung 20 im Haus A

Wohnung 20 4. OG, Nord-West
3 Zimmer, ca. 83,94 m² Wohnfläche
verkauft

Haus B

Ansicht Wohnung B.1.00.1
Grundriss Wohnung B.1.00.1
Blick auf die Elbe aus der Wohnung 21 im Haus B

Wohnung 21 EG, Süd-Ost
3 Zimmer, ca. 87,10 m² Wohnfläche
Kaufpreis 429.000 €

Ansicht Wohnung B.1.00.2
Grundriss Wohnung B.1.00.2
Blick auf die Elbe aus der Wohnung 22 im Haus B

Wohnung 22 EG, Süd-West
3 Zimmer, ca. 92,00 m² Wohnfläche
Kaufpreis 458.000 €

Ansicht Wohnung B.1.00.3
Grundriss Wohnung B.1.00.3

Wohnung 23 EG, Nord-West
2 Zimmer, ca. 76,24 m² Wohnfläche
Kaufpreis 368.000 €

Ansicht Wohnung B.1.00.4
Grundriss Wohnung B.1.00.4
Blick auf die Elbe aus der Wohnung 24* im Haus B

Wohnung 24 EG, Nord-Ost
2 Zimmer, ca. 70,81 m² Wohnfläche
barrierearm*
Kaufpreis 338.000 €

Ansicht Wohnung B.1.01.1
Grundriss Wohnung B.1.01.1

Wohnung 25 1. OG, Süd-Ost
3 Zimmer, ca. 79,80 m² Wohnfläche
reserviert

Ansicht Wohnung B.1.01.2
Grundriss Wohnung B.1.01.2

Wohnung 26 1. OG, Süd-West
3 Zimmer, ca. 82,42 m² Wohnfläche
Kaufpreis 414.000 €

Ansicht Wohnung B.1.01.3
Grundriss Wohnung B.1.01.3

Wohnung 27 1. OG, Nord-West
3 Zimmer, ca. 83,29 m² Wohnfläche
Kaufpreis 408.000 €

Ansicht Wohnung B.1.01.4
Grundriss Wohnung B.1.01.4
Blick auf die Elbe aus der Wohnung 28* im Haus B

Wohnung 28 1. OG, Nord-Ost
2 Zimmer, ca. 66,63 m² Wohnfläche
barrierearm*
verkauft

Ansicht Wohnung B.1.02.1
Grundriss Wohnung B.1.02.1

Wohnung 29 2. OG, Süd-Ost
3 Zimmer, ca. 79,80 m² Wohnfläche
verkauft

Ansicht Wohnung B.1.02.2
Grundriss Wohnung B.1.02.2

Wohnung 30 2. OG, Süd-West
3 Zimmer, ca. 82,36 m² Wohnfläche
Kaufpreis 419.000 €

Ansicht Wohnung B.1.02.3
Grundriss Wohnung B.1.02.3

Wohnung 31 2. OG, Nord-West
3 Zimmer, ca. 83,28 m² Wohnfläche
Kaufpreis 412.000 €

Ansicht Wohnung B.1.02.4
Grundriss Wohnung B.1.02.4

Wohnung 32 2. OG, Nord-Ost
2 Zimmer, ca. 66,64 m² Wohnfläche
barrierearm*
verkauft

Ansicht Wohnung B.1.03.1
Grundriss Wohnung B.1.03.1

Wohnung 33 3. OG, Süd-Ost
3 Zimmer, ca. 79,80 m² Wohnfläche
verkauft

Ansicht Wohnung B.1.03.2
Grundriss Wohnung B.1.03.2

Wohnung 34 3. OG, Süd-West
3 Zimmer, ca. 82,48 m² Wohnfläche
verkauft

Ansicht Wohnung B.1.03.3
Grundriss Wohnung B.1.03.3

Wohnung 35 3. OG, Nord-West
3 Zimmer, ca. 83,27 m² Wohnfläche
Kaufpreis 422.000 €

Ansicht Wohnung B.1.03.4
Grundriss Wohnung B.1.03.4

Wohnung 36 3. OG, Nord-Ost
2 Zimmer, ca. 66,62 m² Wohnfläche
barrierearm*
verkauft

Ansicht Wohnung B.1.04.1
Grundriss Wohnung B.1.04.1

Wohnung 37 4. OG, Süd-Ost
2 Zimmer, ca. 66,15 m² Wohnfläche
verkauft

Ansicht Wohnung B.1.04.2
Grundriss Wohnung B.1.04.2

Wohnung 38 4. OG, Süd-West
2 Zimmer, ca. 69,33 m² Wohnfläche
verkauft

Ansicht Wohnung B.1.04.3
Grundriss Wohnung B.1.04.3

Wohnung 39 4. OG, Nord-West
2 Zimmer, ca. 65,72 m² Wohnfläche
verkauft

Ansicht Wohnung B.1.04.4
Grundriss Wohnung B.1.04.4

Wohnung 40 4. OG, Nord-Ost
2 Zimmer, ca. 66,67 m² Wohnfläche
verkauft

Haus H

Ansicht Wohnung H.1.00.1
Grundriss Wohnung H.1.00.1

Wohnung 41 EG, Süd-Ost
3 Zimmer, ca. 84,60 m² Wohnfläche
Kaufpreis 424.000 €

Ansicht Wohnung H.1.00.2
Grundriss Wohnung H.1.00.2

Wohnung 42 EG, Süd-West
3 Zimmer, ca. 91,31 m² Wohnfläche
Kaufpreis 450.000 €

Ansicht Wohnung H.1.00.3
Grundriss Wohnung H.1.00.3

Wohnung 43 EG, Nord-West
2 Zimmer, ca. 75,80 m² Wohnfläche
Kaufpreis 364.000 €

Ansicht Wohnung H.1.00.4
Grundriss Wohnung H.1.00.4

Wohnung 44 EG, Nord-Ost
2 Zimmer, ca. 70,77 m² Wohnfläche
barrierearm*
Kaufpreis 336.000 €

Ansicht Wohnung H.1.01.1
Grundriss Wohnung H.1.01.1

Wohnung 45 1. OG, Süd-Ost
3 Zimmer, ca. 79,80 m² Wohnfläche
verkauft

Ansicht Wohnung H.1.01.2
Grundriss Wohnung H.1.01.2
Blick auf die Elbe aus der Wohnung 46 im Haus H

Wohnung 46 1. OG, Süd-West
3 Zimmer, ca. 82,54 m² Wohnfläche
reserviert

Ansicht Wohnung H.1.01.3
Grundriss Wohnung H.1.01.3

Wohnung 47 1. OG, Nord-West
3 Zimmer, ca. 83,24 m² Wohnfläche
verkauft

Ansicht Wohnung H.1.01.4
Grundriss Wohnung H.1.01.4

Wohnung 48 1. OG, Nord-Ost
2 Zimmer, ca. 66,54 m² Wohnfläche
barrierearm*
verkauft

Ansicht Wohnung H.1.02.1
Grundriss Wohnung H.1.02.1

Wohnung 49 2. OG, Süd-Ost
3 Zimmer, ca. 79,79 m² Wohnfläche
verkauft

Ansicht Wohnung H.1.02.2
Grundriss Wohnung H.1.02.2
Blick auf die Elbe aus der Wohnung 50 im Haus H

Wohnung 50 2. OG, Süd-West
3 Zimmer, ca. 82,48 m² Wohnfläche
verkauft

Ansicht Wohnung H.1.02.3
Grundriss Wohnung H.1.02.3
Blick auf die Elbe aus der Wohnung 51 im Haus H

Wohnung 51 2. OG, Nord-West
3 Zimmer, ca. 83,24 m² Wohnfläche
Kaufpreis 421.000 €

Ansicht Wohnung H.1.02.4
Grundriss Wohnung H.1.02.4
Blick auf die Elbe aus der Wohnung 52* im Haus H

Wohnung 52 2. OG, Nord-Ost
2 Zimmer, ca. 66,55 m² Wohnfläche
barrierearm*
verkauft

Ansicht Wohnung H.1.03.1
Grundriss Wohnung H.1.03.1

Wohnung 53 3. OG, Süd-Ost
3 Zimmer, ca. 79,83 m² Wohnfläche
verkauft

Ansicht Wohnung H.1.03.2
Grundriss Wohnung H.1.03.2

Wohnung 54 3. OG, Süd-West
3 Zimmer, ca. 82,54 m² Wohnfläche
verkauft

Ansicht Wohnung H.1.03.3
Grundriss Wohnung H.1.03.3
Blick auf die Elbe aus der Wohnung 55 im Haus H

Wohnung 55 3. OG, Nord-West
3 Zimmer, ca. 83,24 m² Wohnfläche
verkauft

Ansicht Wohnung H.1.03.4
Grundriss Wohnung H.1.03.4
Blick auf die Elbe aus der Wohnung 56* im Haus H

Wohnung 56 3. OG, Nord-Ost
2 Zimmer, ca. 66,53 m² Wohnfläche
barrierearm*
verkauft

Ansicht Wohnung H.1.04.1
Grundriss Wohnung H.1.04.1
Blick auf die Elbe aus der Wohnung 57 im Haus H

Wohnung 57 4. OG, Süd-Ost
2 Zimmer, ca. 66,00 m² Wohnfläche
verkauft

Ansicht Wohnung H.1.04.2
Grundriss Wohnung H.1.04.2
Blick auf die Elbe aus der Wohnung 58 im Haus H

Wohnung 58 4. OG, Süd-West
2 Zimmer, ca. 69,19 m² Wohnfläche
verkauft

Ansicht Wohnung H.1.04.3
Grundriss Wohnung H.1.04.3
Blick auf die Elbe aus der Wohnung 59 im Haus H

Wohnung 59 4. OG, Nord-West
2 Zimmer, ca. 65,69 m² Wohnfläche
reserviert

Ansicht Wohnung H.1.04.4
Grundriss Wohnung H.1.04.4
Blick auf die Elbe aus der Wohnung 60 im Haus H

Wohnung 60 4. OG, Nord-Ost
2 Zimmer, ca. 66,40 m² Wohnfläche
verkauft

Haus I

Ansicht Wohnung I.1.00.1
Grundriss Wohnung I.1.00.1
Blick auf die Elbe aus der Wohnung 61 im Haus I

Wohnung 61 EG, Süd-West
3 Zimmer, ca. 93,38 m² Wohnfläche
verkauft

Ansicht Wohnung I.1.00.2
Grundriss Wohnung I.1.00.2
Blick auf die Elbe aus der Wohnung 62 im Haus I

Wohnung 62 EG, Süd-Ost
3 Zimmer, ca. 94,99 m² Wohnfläche
verkauft

Ansicht Wohnung I.1.00.3
Grundriss Wohnung I.1.00.3
Blick auf die Elbe aus der Wohnung 63 im Haus I

Wohnung 63 EG, Nord-Ost
3 Zimmer, ca. 82,01 m² Wohnfläche
verkauft

Ansicht Wohnung I.1.00.4
Grundriss Wohnung I.1.00.4
Blick auf die Elbe aus der Wohnung 64* im Haus I

Wohnung 64 EG, Nord-West
3 Zimmer, ca. 94,44 m² Wohnfläche
barrierearm*
Kaufpreis 494.000 €

Ansicht Wohnung I.1.01.1
Grundriss Wohnung I.1.01.1
Blick auf die Elbe aus der Wohnung 65 im Haus I

Wohnung 65 1. OG, Süd-West
3 Zimmer, ca. 87,33 m² Wohnfläche
verkauft

Ansicht Wohnung I.1.01.2
Grundriss Wohnung I.1.01.2

Wohnung 66 1. OG, Süd-Ost
3 Zimmer, ca. 87,36 m² Wohnfläche
verkauft

Ansicht Wohnung I.1.01.3
Grundriss Wohnung I.1.01.3
Blick auf die Elbe aus der Wohnung 67 im Haus I

Wohnung 67 1. OG, Nord-Ost
3 Zimmer, ca. 79,38 m² Wohnfläche
verkauft

Ansicht Wohnung I.1.01.4
Grundriss Wohnung I.1.01.4
Blick auf die Elbe aus der Wohnung 68* im Haus I

Wohnung 68 1. OG, Nord-West
4 Zimmer, ca. 99,55 m² Wohnfläche
barrierearm*
verkauft

Ansicht Wohnung I.1.02.1
Grundriss Wohnung I.1.02.1

Wohnung 69 2. OG, Süd-West
3 Zimmer, ca. 87,32 m² Wohnfläche
verkauft

Ansicht Wohnung I.1.02.2
Grundriss Wohnung I.1.02.2

Wohnung 70 2. OG, Süd-Ost
3 Zimmer, ca. 87,35 m² Wohnfläche
verkauft

Ansicht Wohnung I.1.02.3
Grundriss Wohnung I.1.02.3

Wohnung 71 2. OG, Nord-Ost
3 Zimmer, ca. 79,38 m² Wohnfläche
verkauft

Ansicht Wohnung I.1.02.4
Grundriss Wohnung I.1.02.4
Blick auf die Elbe aus der Wohnung 72* im Haus I

Wohnung 72 2. OG, Nord-West
4 Zimmer, ca. 99,55 m² Wohnfläche
barrierearm*
Kaufpreis 540.000 €

Ansicht Wohnung I.1.03.1
Grundriss Wohnung I.1.03.1

Wohnung 73 3. OG, Süd-West
3 Zimmer, ca. 87,33 m² Wohnfläche
verkauft

Ansicht Wohnung I.1.03.2
Grundriss Wohnung I.1.03.2

Wohnung 74 3. OG, Süd-Ost
3 Zimmer, ca. 87,35 m² Wohnfläche
verkauft

Ansicht Wohnung I.1.03.3
Grundriss Wohnung I.1.03.3

Wohnung 75 3. OG, Nord-Ost
3 Zimmer, ca. 79,38 m² Wohnfläche
verkauft

Ansicht Wohnung I.1.03.4
Grundriss Wohnung I.1.03.4
Blick auf die Elbe aus der Wohnung 76* im Haus I

Wohnung 76 3. OG, Nord-West
4 Zimmer, ca. 99,54 m² Wohnfläche
barrierearm*
Kaufpreis 550.000 €

Ansicht Wohnung I.1.04.1
Grundriss Wohnung I.1.04.1
Blick auf die Elbe aus der Wohnung 77 im Haus I

Wohnung 77 4. OG, Süd-West
2 Zimmer, ca. 72,04 m² Wohnfläche
verkauft

Ansicht Wohnung I.1.04.2
Grundriss Wohnung I.1.04.2

Wohnung 78 4. OG, Süd-Ost
2 Zimmer, ca. 72,19 m² Wohnfläche
verkauft

Ansicht Wohnung I.1.04.3
Grundriss Wohnung I.1.04.3

Wohnung 79 4. OG, Nord-Ost
3 Zimmer, ca. 77,75 m² Wohnfläche
verkauft

Ansicht Wohnung I.1.04.4
Grundriss Wohnung I.1.04.4

Wohnung 80 4. OG, Nord-West
3 Zimmer, ca. 83,79 m² Wohnfläche
verkauft

*barrierearm gem. §50 LBO-SH


Ein Tiefgaragen-Stellplatz kann für 30.500 Euro erworben werden.

Keine Käufercourtage.

Angabenvorbehalt

Änderungen, Fehler, Irrtümer und ein zwischenzeitlicher Verkauf vorbehalten. Alle Maße und Angaben sind freibleibend und unverbindlich. Geringe Abweichungen hinsichtlich der Wohnflächenberechnung sind baubedingt möglich.

Die mit Abschluss eines Kaufvertrages verbundenen Kosten, wie z.B. Notarkosten, Gerichtsgebühren und Grunderwerbssteuer sind nicht im Preis enthalten und im Falle eines Erwerbs vom Käufer zu tragen.

Interessiert?
Treten Sie mit uns in Kontakt.

*Ich akzeptiere die Datenschutzrichtlinien
Datenschutzerklärung: Mit dem Senden dieser Nachricht erklären Sie sich damit einverstanden, dass wir Ihre darin angegebenen, persönlichen Daten speichern, verarbeiten und nutzen. Wir versichern, dass wir sämtliche personenbezogenen Daten streng vertraulich behandeln und ausschließlich für den auf der Formularseite genannten Zweck verwenden. Es erfolgt keine Datenweitergabe an Dritte. Abschließend weisen wir darauf hin, dass Sie die Einwilligung zur Speicherung Ihrer personenbezogenen Daten jederzeit widerrufen können.

*Ich akzeptiere die Kontaktaufnahme der Sparda Immobilien GmbH bezüglich des Projektes.

Bitte alle *Pflichtfelder vollständig bzw. korrekt ausfüllen.